Bebauungsplan "Bühl"

Gemeinde Baindt
Projektübersicht
Ort:

Gemeinde Baindt (Landkreis Ravensburg)

Auftraggeber:

Gemeinde Baindt

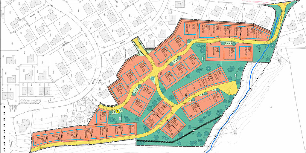
Geltungsbereich: 4,50 ha
Beteiligte Teams:
Stadtplanung, Artenschutz, Landschaftsplanung, Visualisierung
Teilleistungen:
  • Bebauungsplan
  • Flächennutzungsplanberichtigung
  • Städtebauliches Konzept
  • Rahmenplan
  • Artenschutz Kurzbericht
  • Grünordnungsplan
  • Natura 2000/FFH-Verträglichkeitsuntersuchung und -Vorprüfung
  • Abarbeitung der Umweltbelange
  • 3D-Visualisierung
  • Städtebaulicher Entwurf
  • Erstellung der Abwägungsvorlagen
  • Projekt- und Verfahrensmanagement

Projektdetails

Gemeinsam mit der Kommune haben wir ein nachhaltiges Baugebiet entwickelt. Ein PV-Gebot, Dachbegrünung etc. flächensparendes, verdichtetes Bauen sowie großzügige Grünflächen als Begegnungsräume, kombiniert mit Entwässerung kennzeichnen das Gebiet.

Unser Büro stand in enger Zusammenarbeit mit den Fassnacht Ingenieuren (Erschließungsplanung, Hochwasserprognose, Starkregenprognose, Wasserrechtsverfahren).

 

Besondere Herausforderungen

  • Intensive Beratungen im Gemeinderat zu den verschiedenen Bebauungsdichten

  • Integration des angrenzenden Bachlaufes mit Spielplatz

  • Berücksichtigung der Ortsrandlage

  • Rücksichtnahme auf Bestandsbebauung

  • Integration der bewegten Topographie in den Städtebaulichen Enwurf

  • Entwicklung in Bauabschnitten ermöglichen

  • Berücksichtigung von Hochwasserschutz und Starkregen in die Planung

Einblicke ins Projekt

Visualisierung "Bühl"

Kopterflug über "Bühl"

Beteiligte Teams

Stadtplanung
Ulrike Dintzer
Dipl.-Geographin
Stadtplanung
Andreas Eppinger
Dipl.-Ing. (FH) Stadtplaner

"Einen Beitrag zu einem guten Miteinander zu leisten motiviert mich jeden Tag zum Arbeiten."

Stefan Böhm
Artenschutz | Geschäftsleitung | Dipl.-Biologe | Geschäftsleitung
Artenschutz
Stefan Böhm
Dipl.-Biologe | Geschäftsleitung

"Täglich neue Herausforderungen machen meine Arbeit sehr abwechslungsreich."

Matthias Heumos
Landschaftsplanung | B.Eng. Landschaftsplanung
Landschaftsplanung
Matthias Heumos
B.Eng. Landschaftsplanung
Visualisierung
Michel Hertling
Dipl.-Ing. (FH) Landschaftsarchitektur

Bauleitplanung: Alles aus einer Hand


Wir begleiten Sie auf dem Weg zu rechtssicheren 
Planlösungen bei
Ihrem Projekt.

Jetzt anfragen

Gesamtes Leistungsspektrum

Sie haben Fragen?